【入居募集】別府峯住宅(村有住宅)の入居者を募集します!
別府峯住宅は、グラウンド仮設住宅を改修工事した村有住宅です。
下記及び募集要項により、入居者を募集します。
1.募集住宅
2.入居条件
3.申込方法
4.入居者の決定までのスケジュール
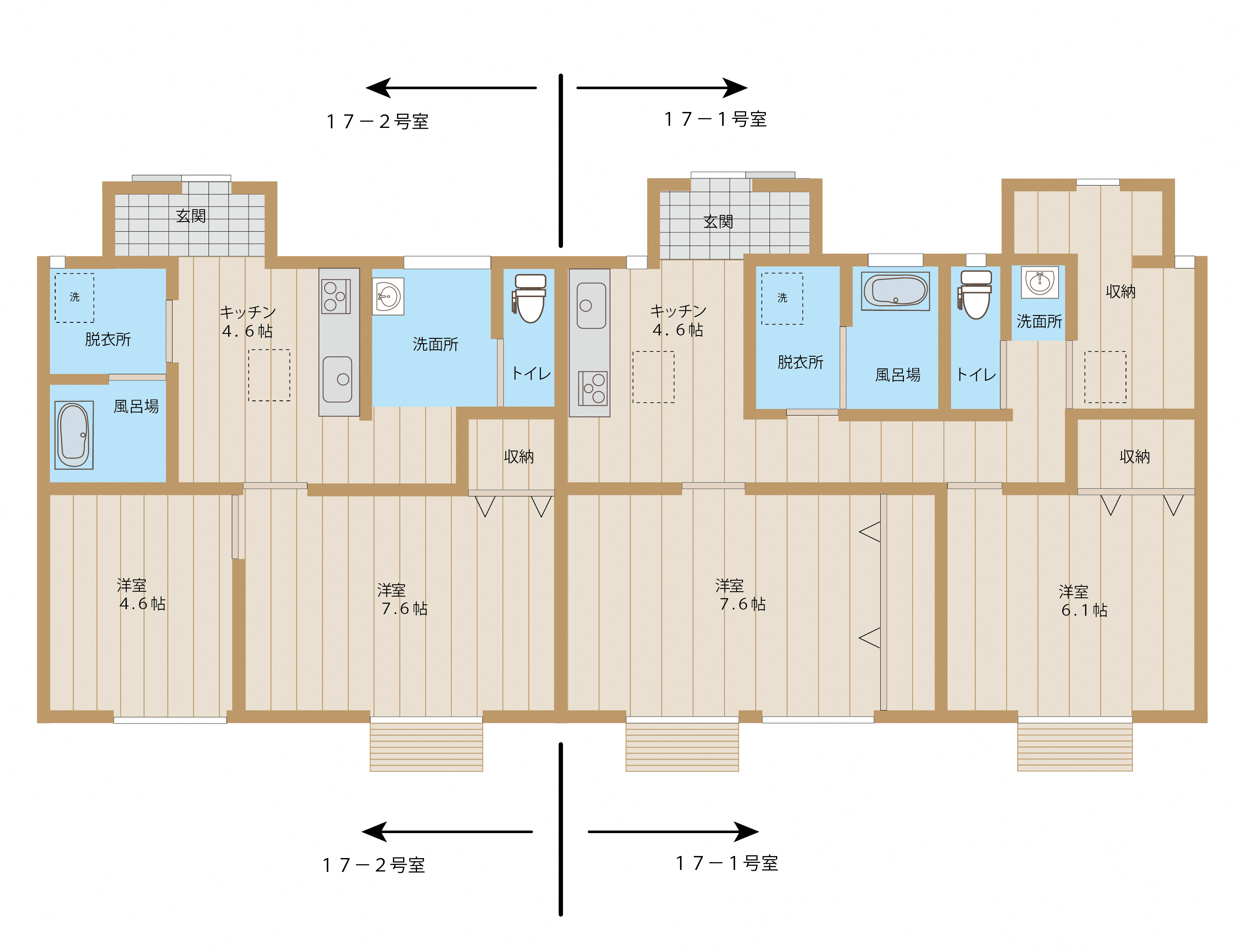
1.募集住宅
住宅名:別府峯住宅構造:木造平屋建て(1棟2戸)募集戸数:5戸所在地:熊本県球磨郡球磨村大字渡乙880番地1上水:球磨村営簡易水道下水:合併浄化槽(維持管理費は共益費に含まれています)共益費:3,500円(家賃に含みません)その他:プロパンガス、水洗トイレ| | 10-2号室 | 17-1号室 | 17-2号室 | 18-1号室 | 18-2号室 |
|---|
| 規格 | 75.70㎡ 3LDK | 53.82㎡ 2DK | 41.81㎡ 2DK | 63.76㎡ 2DK | 41.81㎡ 2DK |
| 家賃 | 33,000円 | 25,000円 | 19,000円 | 29,000円 | 19,000円 |
| 敷金 | 99,000円 | 75,000円 | 57,000円 | 87,000円 | 57,000円 |
入居者募集期間
令和8年2月9日(月曜日) 10時00分から 令和8年3月10日(火曜日) 15時00分まで
2.入居条件
- 村内外居住者を問わない(村外の場合は、入居と同時に住民登録できる者)。
- 市町村税の滞納がない者であること。
- 入居者又は同居親族が暴力団員による不当な行為の防止等に関する法律(平成3年法律第77号)第2条第6号に規定する暴力団員でないこと。
- 「17-2号室」「18-2号室」は、単身入居可能。ただし、2人以上世帯の入居を優先する。
- ペットの飼育は不可。
- 申込者は、収入のある者を原則とする。
3.申込方法
以下の書類を提出してください| 種類 | 様式等 |
|---|
| 村有住宅入居申込書 | |
| 入居される方全員の所得が分かる書類 | - 市町村県民税課税台帳記載事項証明書(市区町村発行)
- 源泉徴収票の写し 等
|
| 入居される方全員の未納がないことの証明書 | |
| 入居される方全員の住民票の写し | |
【提出先】
球磨村役場 総務課管財係
〒869-6401 熊本県球磨郡球磨村大字渡丙1730番地
4.入居者決定までのスケジュール
(1)球磨村営住宅入居者審査会を開催し、書類審査により入居予定者を決定する。
(2)入居予定者の決定通知は、本人宛に通知する。
(3)決定された入居予定者が複数の場合は、公開抽選により決定する。公開抽選会には、申込者本人の参加が原則となります。
抽選会(予定):令和8年3月17日(火曜日) 15時30分から
抽選会場(予定):球磨村役場
(4)入居者が決定後、随時契約を行います。

外観

外観

外観(ベランダ側)

外観(ベランダ側)

外倉庫

外倉庫

キッチン

キッチン

洗面所

風呂場

風呂場

トイレ

和室

洋室

リビング

収納(和室)

収納(洋室)
※玄関については、現在、木造となっていますが、令和8年度以降にコンクリート造りに改修工事を行います。